Commission Includes Both Listing & Selling Fees

Cell: 613-296-6060 Office: 1-855-728-9846

SOLD – 110 CLARENCE STREET – GANANOQUE & 1000 ISLANDS

Gananoque

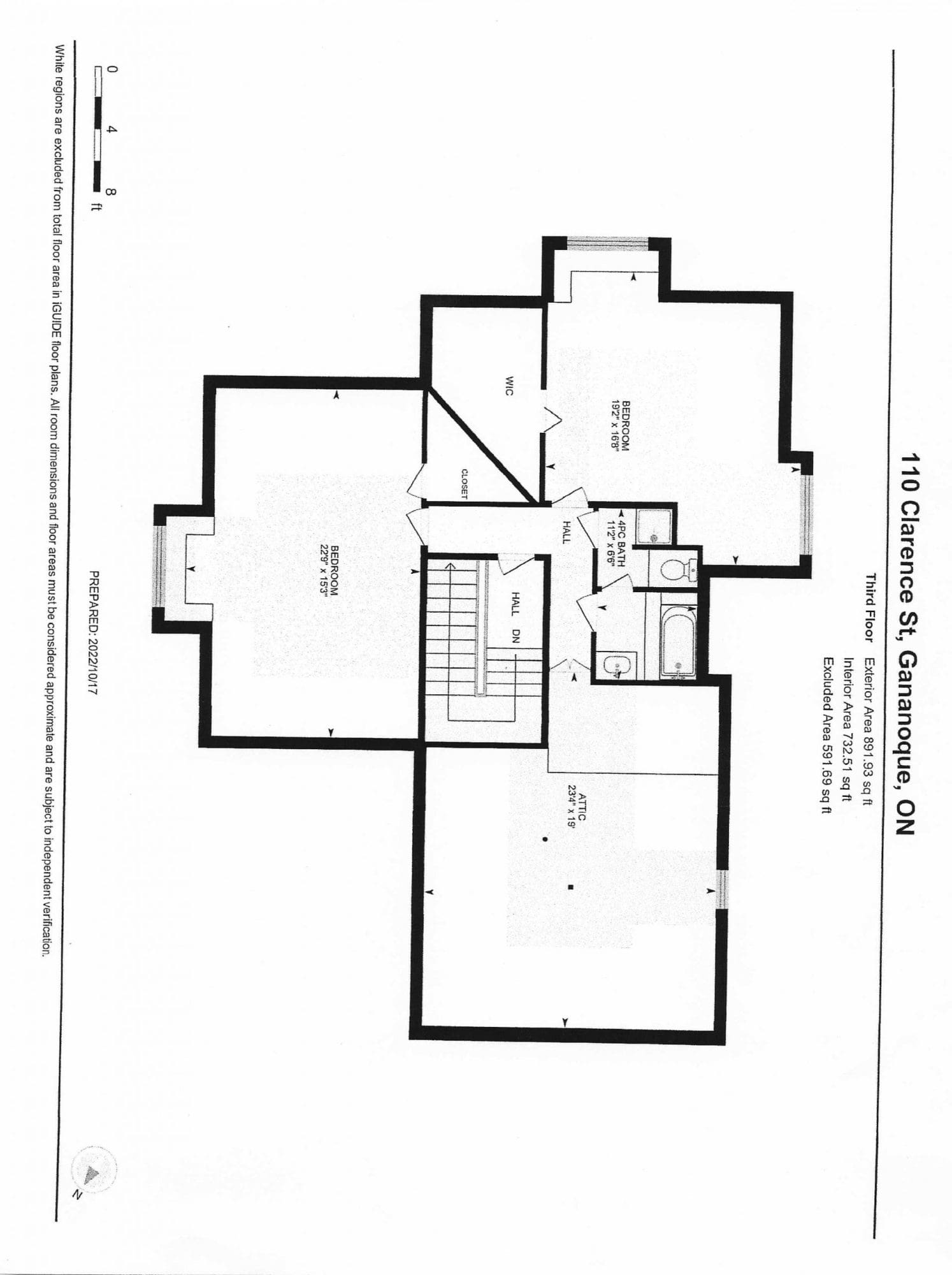
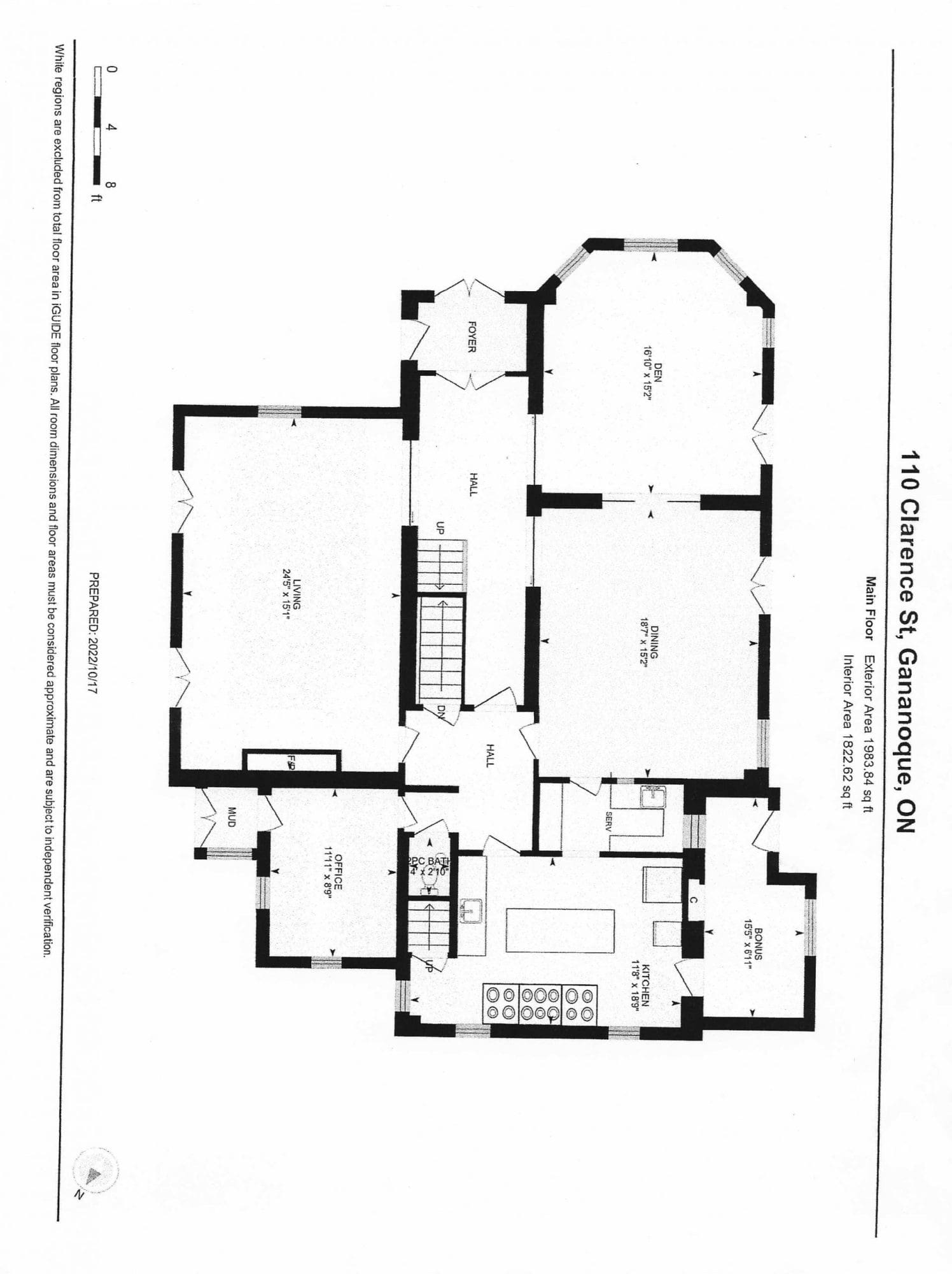
WOW!  LOCATION! LOCATION! LOCATION!  What a prime location in the most coveted part of the historic and exciting town of Gananoque known at the “Gateway to the Thousand Islands”  Just steps to the local town Marina, 1000 Island Boat cruises, restaurants, and quaint shopping. Here lies endless opportunities and possibilities for all types of businesses. With 120 ft. frontage and both Commercial and Residential zoning one can use this property as a residential private home (currently as such) or redevelop as they wish to an array of options. This grand 6 bedroom and 5 bathroom property has been a successful restaurant twice and a bed and breakfast by previous owners over the years and now awaits a new owners ideas and needs. All brick built and very level home this property features an inside front porch entry with a large inside foyer leading to a grand 3 floor wood staircase, 24 foot entertainment size living room with antique fireplace (currently not in use), a huge 18 ft dining room , a 16 foot family-room or parlor, high ceilings, original large wood trim, several large pocket doors, stained glass, hardwood floors, and a huge high and dry partially finished basement with walk-out. The large kitchen area still offers a commercial kitchen set up with stainless steel counters, commercial hood fan, commercial stove (not in use), regular gas stove, s/s fridge, and a butler pantry area with sink between kitchen and dining. Also located off the kitchen is a second staircase to the upper floor and a large mud room. Main floor back office with outside entry. 2nd floor open den or office area. Note the very large bedrooms. Many upgrades over the years include roof 2016, hot water tank 2016, windows 2018, wiring, plumbing, insulated basement and exterior foundation protective finish, insulated attic, etc. See floor plan jpgs with pictures. Come view this wonderful property and make it yours.

 

Bedrooms: 6

Bathrooms: 5

Property Type: 3 Storey